BAL HARBOUR ISLAND HOME
ABOUT THE PROPERTY:
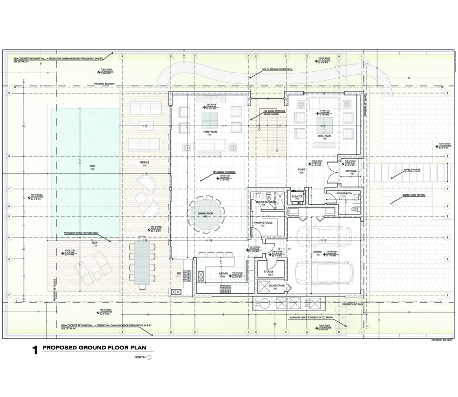
This 6 Bedroom, 7 Bath luxury home was completely designed by BRG Homes. This is a 6,000 sq ft (557 m2) projecton a 10,000 sq ft (929 m2) lot.
This 6 Bedroom, 7 Bath luxury home was completely designed by BRG Homes. This is a 6,000 sq ft (557 m2) projecton a 10,000 sq ft (929 m2) lot.